Appraisal (03) 8398 7800
Appraisal Tel (03) 8398 7800 [email protected]
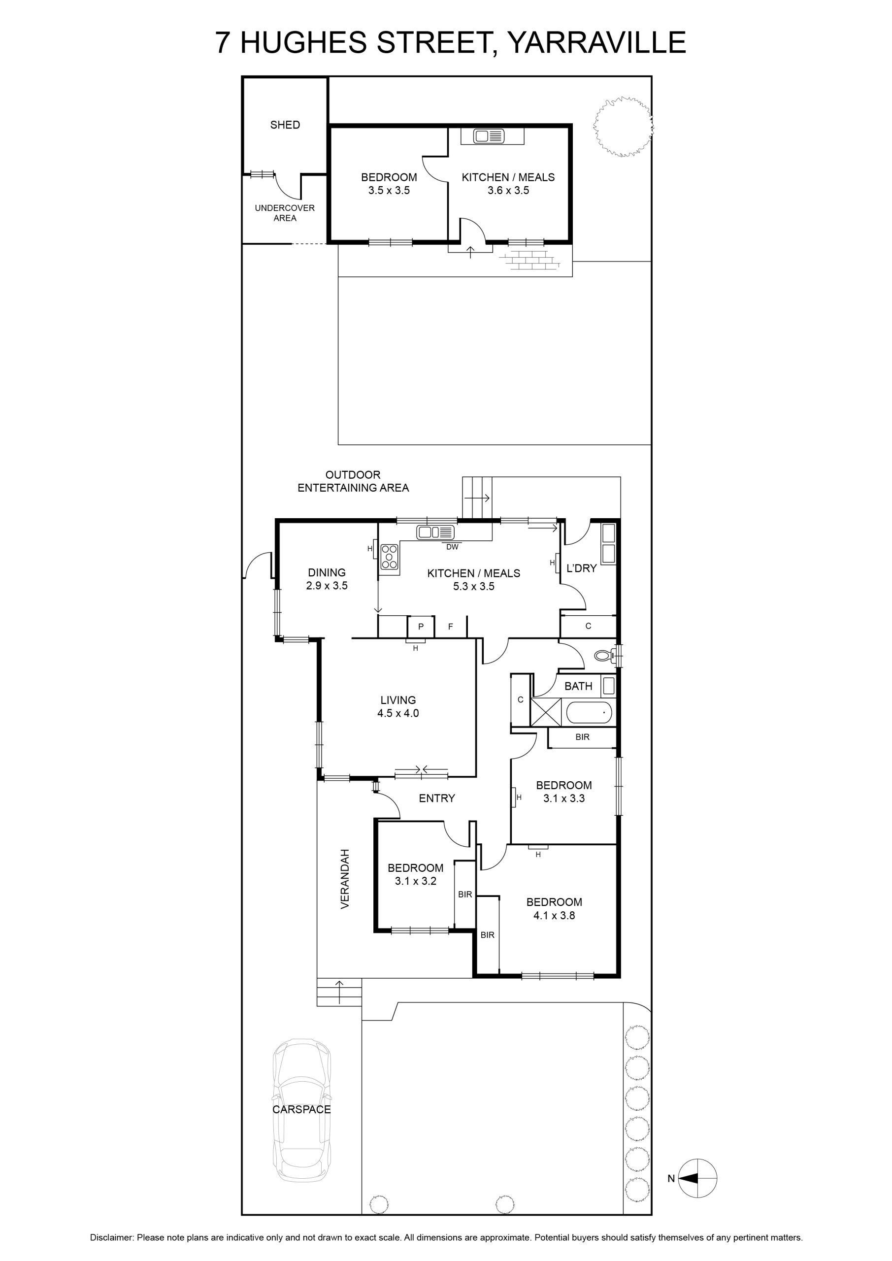
4 1 2 468.0 Sqm $1,149,000 Sunlit Spaces, Generous Land and Endless Possibilities

Clearly built with care and quality in the late c1970s and still entirely serviceable today, this bright family home presents well-maintained original spaces with outstanding potential for contemporary enhancement. Alternatively, the generous allotment suggests exciting scope for a dual townhouse development, STCA.

– central living room filled with abundant natural light
– separate dining room, also enjoying an appealingly bright aspect
– large kitchen and meals area opening to the wide rear garden
– three double bedrooms, including a notably generous main bedroom
– original bathroom complemented by a separate laundry
– north-easterly rear garden providing a private, sun-filled backdrop
– free-standing bungalow featuring a second kitchen and storage rooms
– roller shutters and off-street parking enhancing everyday comfort
– quiet cul-de-sac setting with easy access to village amenities and the city

Information provided herein is believed to be accurate at the time of publishing, no responsibility is taken for any errors or omissions. It is the responsibility of the Purchaser to obtain independent professional advice and verification.

Read More

Location

Documents

Statement of Information Download