Appraisal (03) 8398 7800
Appraisal Tel (03) 8398 7800 [email protected]
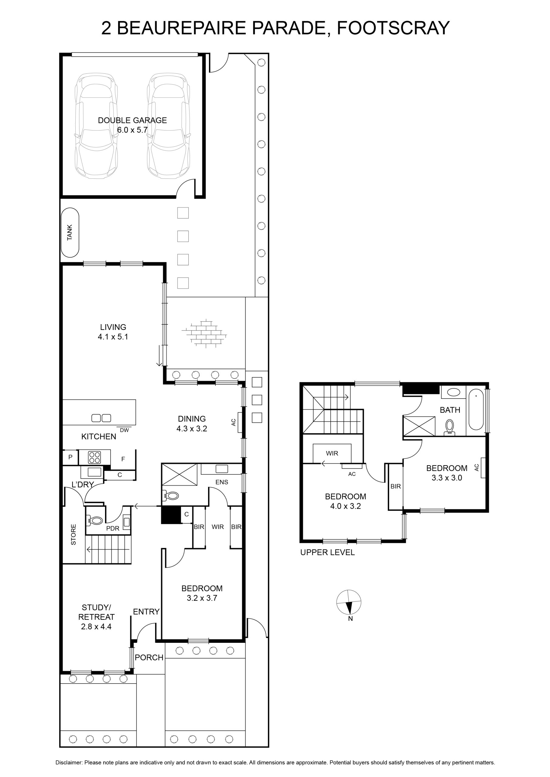
3 2 2 261.0 Sqm $1,314,000
Sold on 04 October, 2025
Sold by John Luong

Days on Market – 24
Sold via – Auction
No. of buyer inspections – 36
Online Views – 7342
Bidders – 3

Read More

Location

Documents

Statement of Information Download