Appraisal (03) 8398 7800
Appraisal Tel (03) 8398 7800 [email protected]
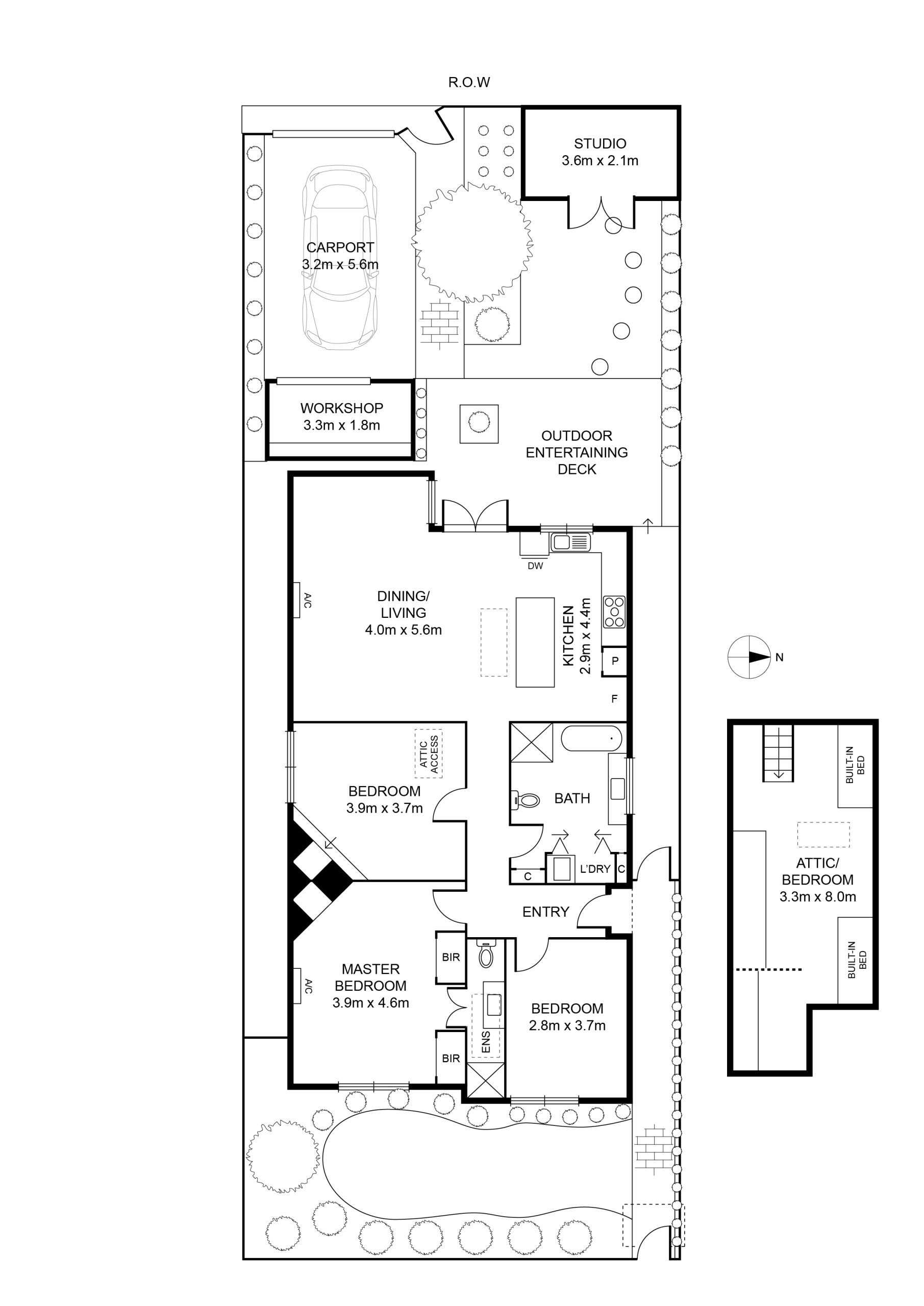
3 2 1 275.0 Sqm $860pw Renovated Kingsville classic, walk-to-everything convenience - Flexible Floorplan

Set in a tranquil, tree-lined street in a coveted pocket of Kingsville, this fully renovated three-bedroom, two-bathroom home will delight renters seeking a luxe, modern with period charm home and a relaxed city-fringe lifestyle.  
Beautifully styled interiors offer instant comfort, classic style and floorplan flexibility, while outside a superb entertainers’ garden, a free-standing work-from-home studio and secure off-street parking await. Featuring:

– Main bedroom with twin built-in robes, ornate fireplace and an ensuite
– Two additional bedrooms
– Converted roof space featuring two in-built beds, could be used as a fourth bedroom, home office, storage or games room
– Freestanding studio nestled within the back garden, offering a quiet work-from-home office or an ideal space for creative hobbies 
– Inviting open-plan living featuring generous dining and lounge zones and a beautifully appointed timber/stone topped kitchen with Miele cooking appliances 
– Luxe bathroom with clawfoot bath, shower, feature vanity, brushed brass tapware and an incorporated European laundry for ultimate convenience 
– Leafy back garden offering kids and pets a lovely outdoor play space to enjoy + generous entertaining deck with retractable shade awning 
– Hardwood floorboards, leadlight feature windows, decorative fireplaces 
– Ducted heating + split-system heating/cooling 
– Secure carport with workshop space via rear laneway access (doubles as additional alfresco entertaining space) 
– Ideally located to enjoy a peaceful city-fringe lifestyle moments from every convenience! Walk to Somerville Road’s cafes and eateries and walk to Seddon Village in 11 minutes for a welcoming hub of cafes, restaurants, boutiques and gourmet grocers. Proximity to Yarraville Village, Footscray’s dining scene and beautiful Cruickshank Park adds extra lifestyle appeal 
– Highly sought-after school zone – walk to Yarraville West Primary School and St. Augustine’s Primary School and cycle to Footscray High School’s Pilgrim campus in seven minutes 
– Only 8.3km from the CBD with easy access by car, or walk to West Footscray Station in 11 minutes for regular city-bound trains  

PLEASE ENSURE YOU REGISTER TO ATTEND OR REQUEST AN INSPECTION.
Click on the “Book Inspection or “Request an Inspection” button and follow the prompts to Register. This will also ensure that you are advised of any changes, updates or cancellations to inspection times.
Please monitor this advertisement for inspection times. All inspection times are subject to cancellation or change up until three (3) hours prior to the advertised time. All Lease Terms are 12 months unless otherwise specified. Parking Permits are usually available for most properties however, please contact the local council before applying for the property.

Read More

Available

From 19th November, 2025

Inspections

Book an Inspection

Location