Appraisal (03) 8398 7800
Appraisal Tel (03) 8398 7800 [email protected]
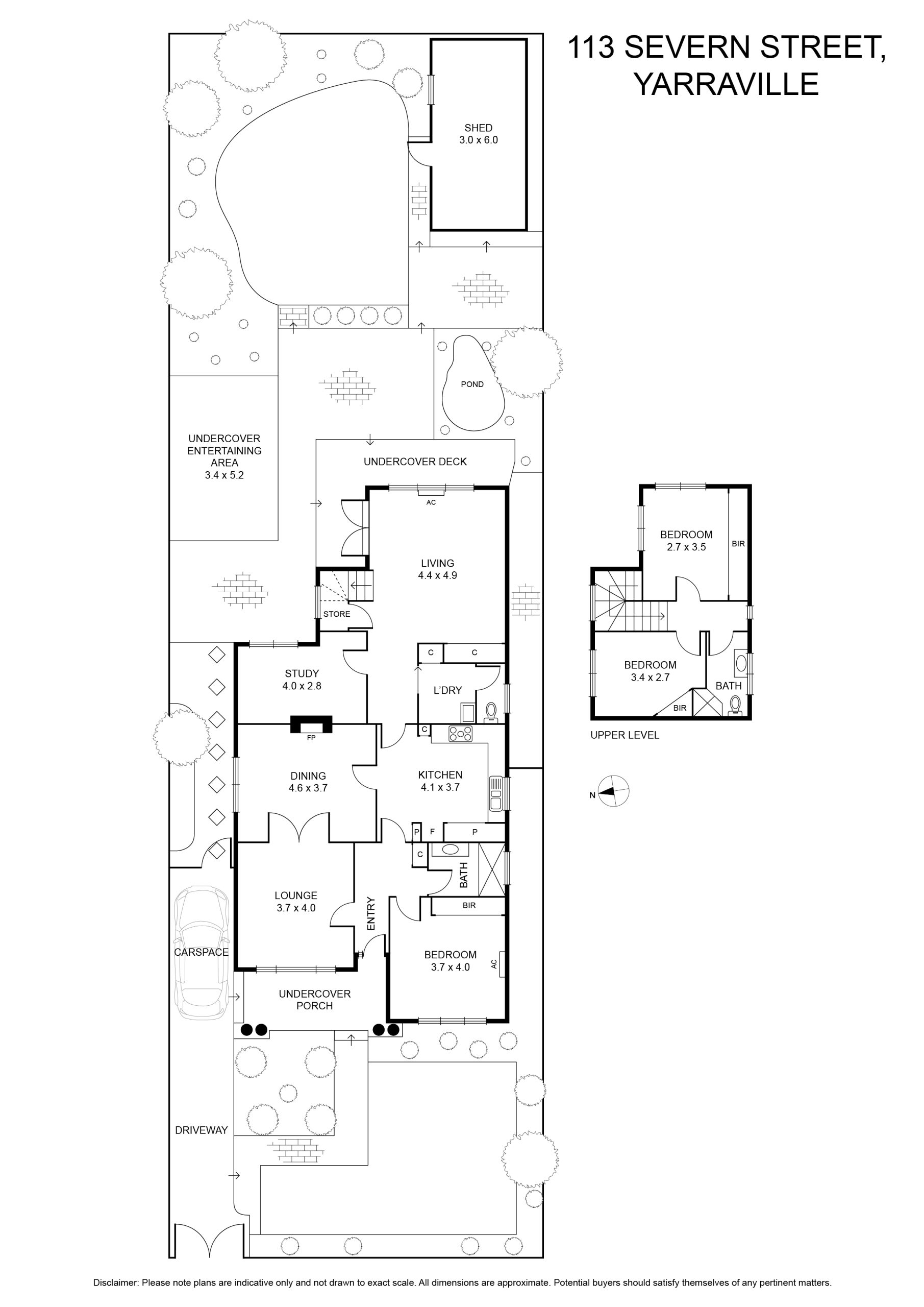
4 2 2 472.0 Sqm $830pw Large Home In Sought After Location

Positioned on an exceptional allotment of over 470sqm, this beautifully presented 4-bedroom, 2-bathroom home offers the ideal blend of space, style, and family functionality. All the best of Yarraville is just a short stroll away – Cruickshank Park, Wembley Primary School, public transport, Sun Theatre, cafes, restaurants, shops, and supermarkets. A wonderful lifestyle awaits, both inside and out.

Comprising: 

– Expansive and versatile front living and dining area
– Central kitchen with generous bench space and ample storage
– Light-filled second living zone at the rear overlooking the lush garden
– Three bedrooms with built in robes, fourth bedroom or home office/study option 
– Fully renovated central bathroom with contemporary finishes
– Second well-appointed bathroom for family convenience
– Separate laundry for added functionality
– Excellent outdoor living with covered alfresco entertaining area with a large landscaped yard 
– Gas Coonara fireplace and ducted heating, split systems for cooling
– Off street parking for two cars 

PLEASE ENSURE YOU REGISTER TO ATTEND OR REQUEST AN INSPECTION.
Click on the “Book Inspection or “Request an Inspection” button and follow the prompts to Register. This will also ensure that you are advised of any changes, updates or cancellations to inspection times.
Please monitor this advertisement for inspection times. All inspection times are subject to cancellation or change up until three (3) hours prior to the advertised time. All Lease Terms are 12 months unless otherwise specified. Parking Permits are usually available for most properties however, please contact the local council before applying for the property.

Read More

Available

From 14th May, 2026

Inspections

Wednesday 15 April 2026 12:25pm - 12:35pm Book an Inspection

Location

Elizabeth Ho

Senior Property Manager

0488 667 832