Appraisal (03) 8398 7800
Appraisal Tel (03) 8398 7800 [email protected]
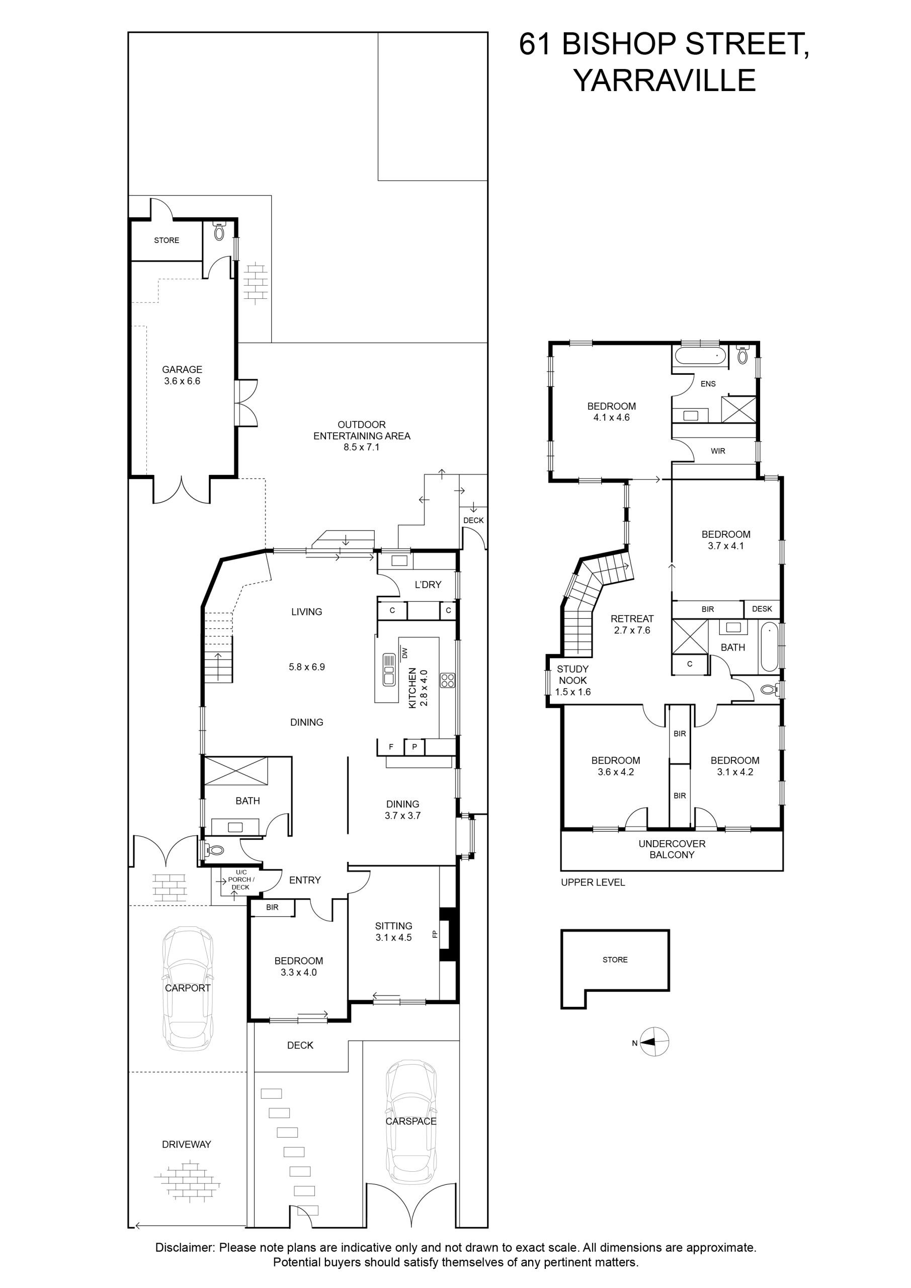
5 3 3 498.0 Sqm $1,500,000 - $1,650,000 The space you need in a location you’ll love

Ideally situated for easy family living, this five-bedroom, three-bathroom home will delight buyers seeking the luxury of space without compromising on proximity to the city.

Set on an enviably large allotment, the house delivers plenty of room to move inside and out, with multiple living zones complemented by spacious all-weather alfresco entertaining, a huge backyard and ample off-street parking.

With Cruickshank Park only footsteps away, cafes and shops within walking distance and Yarraville Village only moments from home, this is a lifestyle opportunity not to be missed.

– super-spacious double-story five-bedroom, three-bathroom residence, ideally positioned for easy city-fringe family living
– an exciting opportunity for buyers seeking a large family home on a generous allotment less than 10km from the CBD
– huge backyard with covered entertaining zone and plenty of space for the kids to play
– main bedroom with a walk-in robe and a full-sized ensuite with bath and shower
– four additional bedrooms with built-in robes, including one with an in-built desk and two with access to a shared balcony
– open-plan living showcasing generous dining and lounge zones alongside a large caesarstone family kitchen with breakfast bar, stainless steel appliances and ample storage and preparation space
– multiple additional living spaces – formal sitting room with cosy fireplace + formal dining room + upstairs retreat with study nook
– two inviting family bathrooms, one on each floor
– walk-in laundry
– ducted heating/cooling
– secure off-street parking including a carport with remote-controlled access gate, plus additional front space for a second vehicle or caravan. Also features a single garage
– perfectly positioned for easy family living and superb convenience. Start the day with a great morning coffee from Westerly, an eight-minute walk from home, and enjoy the shops and eateries of Somerville Road and Roberts Street within easy walking distance. Cruickshank Park awaits a mere two-minute stroll from the front door, offering a lush natural escape, while both Yarraville Village and Seddon Village are within five minutes of home, offering enviable access to the famed village lifestyle of the Inner West. Yarraville’s inviting cafes, restaurants, boutiques and grocers are complemented by cosy wine bars and the iconic Sun Theatre to create a vibrant village hub, while Seddon Village offers a friendly, community-minded destination for great coffee, dining and shopping. Walking distance proximity to Coles adds extra convenience, as does easy access to a choice of shopping centres
– only 9.2km from the CBD with easy access by car, or enjoy regular city-bound trains from nearby Yarraville Station
– highly sought-after school zone – Kingsville Primary School (footsteps from the front door) + Footscray High School (easy bus)

Information provided herein is believed to be accurate at the time of publishing, no responsibility is taken for any errors or omissions. It is the responsibility of the Purchaser to obtain independent professional advice and verification.

Read More

Auction

Saturday 02 May 2026 12:00 PM

Inspections

Saturday 18 April 2026 10:00am - 10:30am Thursday 16 April 2026 05:00pm - 05:20pm

Location

Documents

Statement of Information Download

Courtney Lettieri

Sales Consultant

0456 837 572