Appraisal (03) 8398 7800
Appraisal Tel (03) 8398 7800 [email protected]
2 1 1 $1,200,000 - $1,250,000 OFF MARKET

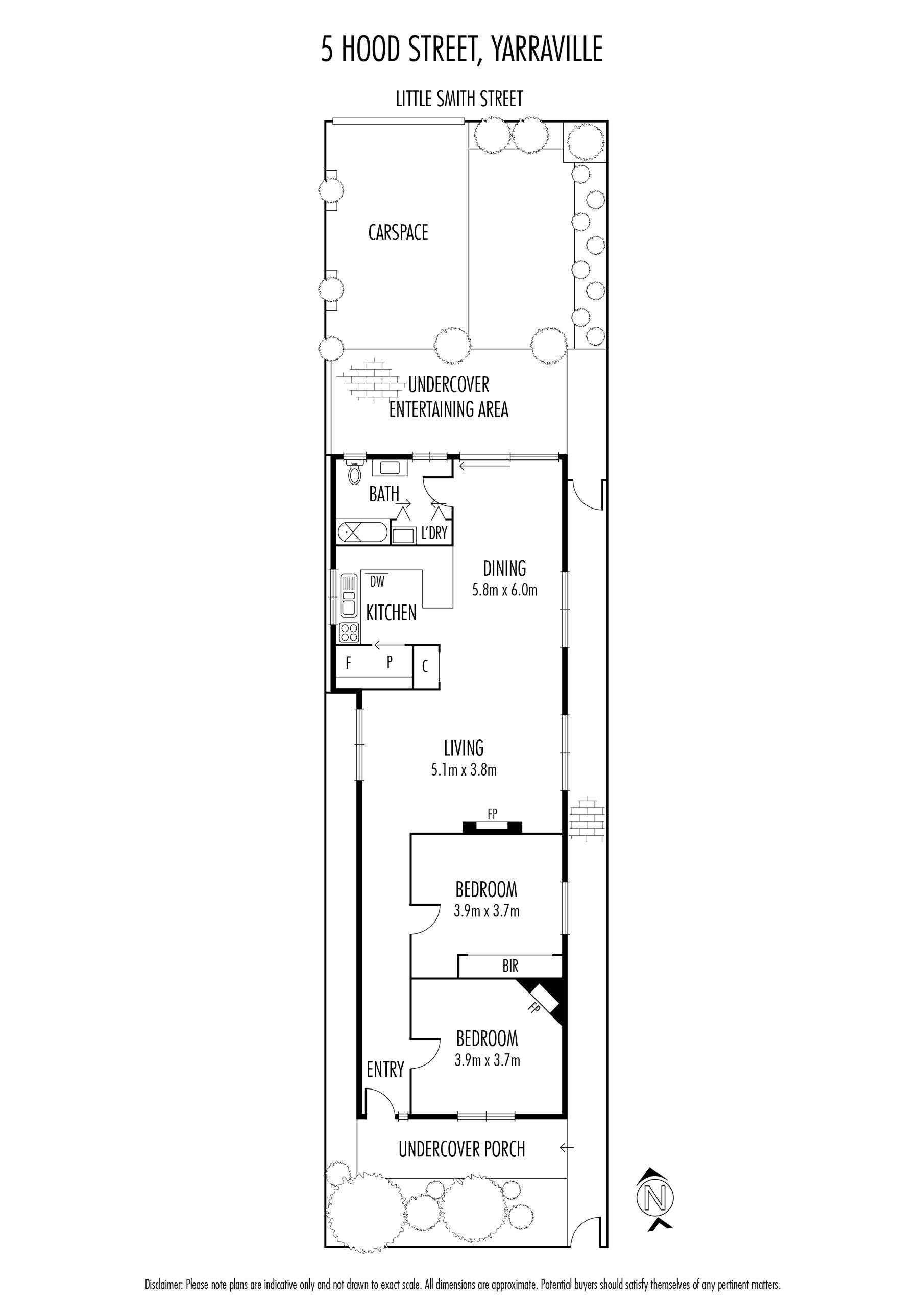
Free standing period home in the heart of Yarraville village. Double bedrooms, walk in pantry, breakfast bar. Open plan kitchen, dining and living. North facing backyard. Walking distance to all the local amenities.

Read More

Location

Documents

Statement of Information Download

Raymond Abilameh

Sales Consultant

0412 210 889