Appraisal (03) 8398 7800
Appraisal Tel (03) 8398 7800 [email protected]
2 1 2 351.0 Sqm $930,000
Sold on 31 May, 2022
Period charmer, perfect for market entrants

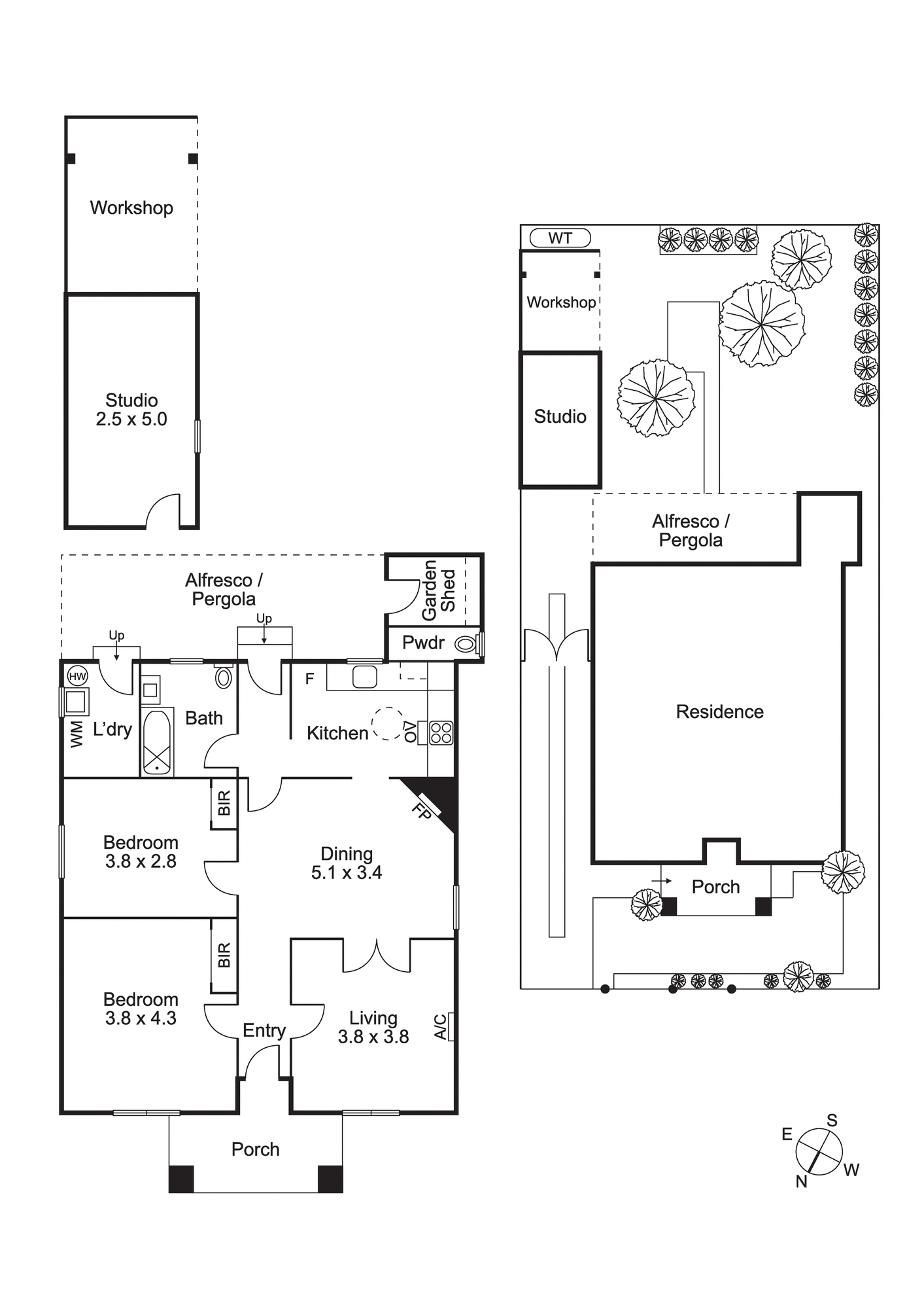
Sitting pretty in a sought-after, tree-lined street, this traditional two bedroom plus studio period home presents a perfect entry-level opportunity for first homebuyers and renovators alike (STCA). Instantly charming, inside and out, featuring an entertainer’s backyard with firepit and self-sufficient gardens comprising flourishing fruit trees and veggie gardens. It’s in a family-friendly neighbourhood near parklands, shops, trains and city access.

_Rich in original details, future options
_Classic façade with gorgeous leadlight aspects
_Light filled lounge, decorative high ceilings
_Original timber floors, rosettes, French doors
_Charming dining room with servery window
_Vintage kitchen, stainless steel gas stove and electric oven
_Comfortable bedrooms with built-ins
_Classic bathroom and laundry, versatile studio
_Garden shed, second w/c, rainwater tanks
_Prolific lemon, apple, plum trees and passionfruit vines
_Split-system air conditioner, gas space heater
_Side driveway, ample off street parking

Read More

Location

Documents

Statement of Information Download

Joseph Luppino

Director | Auctioneer

0411 508 458