Appraisal (03) 8398 7800
Appraisal Tel (03) 8398 7800 [email protected]
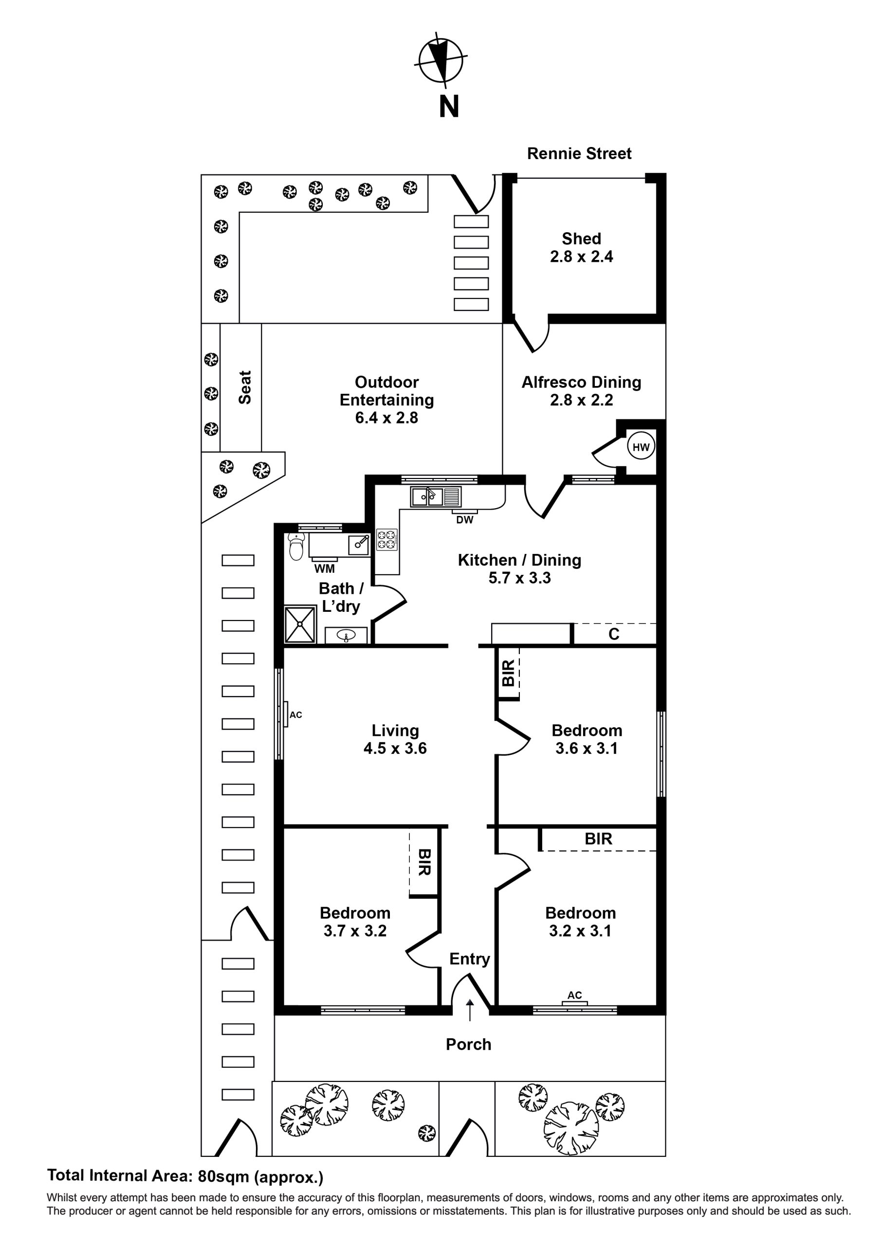
3 1 $1,075,000 - $1,175,000 A dream village lifestyle

Ideally situated to offer the ultimate Inner West lifestyle, this three-bedroom period home will delight those seeking city-fringe convenience and relaxed village charm. Heritage features are complemented by modern updates for instant comfort, while scope for further renovation and extension (STCA) promises a wealth of opportunity in a highly coveted and tightly held pocket of Seddon. Stroll to the village, a choice of Seddon, Footscray or Middle Footscray train stations, sought-after schools and Yarraville Gardens. Don’t miss your chance to inspect!

-superbly located heritage home, updated for instant comfort and easy outdoor entertaining
-an outstanding opportunity for buyers seeking a move-in-ready home with scope for further updates and extension (STCA) – outside of heritage overlay restrictions
-light-filled living room + adjoining open-plan kitchen/dining
-three bedrooms with built-in robes
-stylish modern bathroom/laundry with chic matte black tapware and a luxe rainfall shower
-quality floor treatments, including timber floorboards and premium carpet
-split-system heating/cooling
-spacious back garden – paved alfresco entertaining patio with in-built seating + neat lawn offering a safe outdoor play space for kids and pets + covered all-weather alfresco entertaining zone
-secure shed via rear laneway access which could easily be converted into a garage or carport
-coveted city fringe address within walking distance of three fabulous lifestyle hubs! Stroll to Seddon Village in just two minutes to enjoy its bustling cafes, inviting eateries, local boutiques and gourmet grocers and local pub. Walk to the heart of Footscray for world dining and enjoy walking distance proximity to Yarraville Village for added lifestyle appeal. Families can stroll to Mappin Reserve’s much-loved playground while Yarraville Gardens is the perfect spot for a weekend picnic, conveniently located an easy walk from home
-only 6.9km from the CBD with easy rail access from a choice of railway stations within walking distance, including Seddon Station a five-minute stroll away
-sought-after school zone – Footscray City Primary School (10-minute walk) and Footscray High School’s Pilgrim campus (six-minute walk) + St. Augustine’s Primary School (Yarraville), Victoria University and a choice of childcare options within walking distance

Read More

Auction

Saturday 14 February 2026 12:00 PM

Inspections

Saturday 24 January 2026 10:15am - 10:45am

Location

Documents

Statement of Information Download

Huss Saad

Managing Director | OIEC

0413 364 769