Appraisal (03) 8398 7800
Appraisal Tel (03) 8398 7800 [email protected]
5 3 2 $1,600,000
Sold on 16 February, 2024
Expressions of Interest Date Ends Friday 16th February at 2pm

Designer warehouse living in Seddon – the ultimate urban escape!

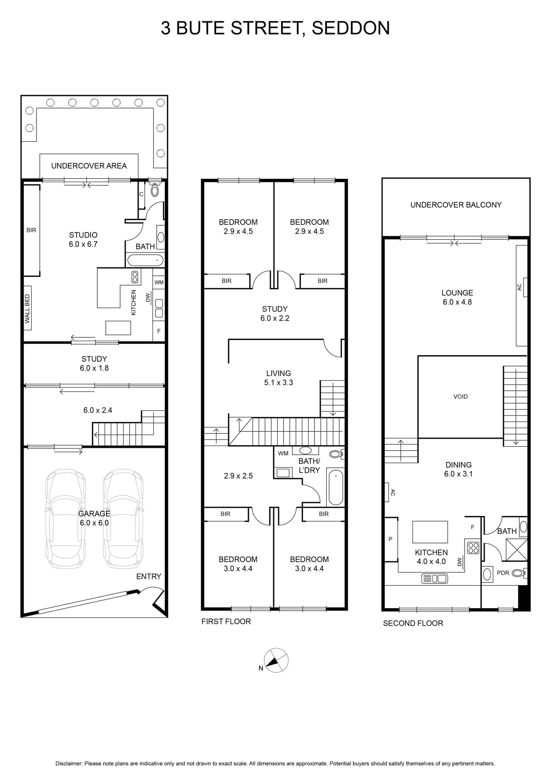
Showcasing the ultimate in bold industrial style and modern designer comfort, this superb four-bedroom, three-bathroom, two-kitchen home offers luxury warehouse-style living in the heart of Seddon Village.

Masterfully designed for flexibility, flow, and easy entertaining, the inspired floor plan delivers three spacious levels crowned by soaring ceilings, with multiple living spaces complemented by two fabulous alfresco entertaining areas.

Ideally positioned footsteps from Seddon and Footscray and enviably close to the CBD, this is the perfect home for buyers seeking the buzz of urban living and a calm, leave-the-world-behind retreat to escape to.

— the ideal city-fringe sanctuary in a Mixed Use Zone for business operators, modern families, entertainers, and those who work from home.
— lower level offers a fully equipped self-contained studio with kitchen, amazing Comfort shop LG M 2.0 rotating queen size wall bed that doubles as shelving + table when not in use and instant access to the private courtyard garden
— middle level features a large living space with stunning mural wall and a generous study flanked by four bedrooms with built-in robes + TVs
— upper level offers a generous living room opening to a shaded balcony with city views + a generous kitchen/dining area
— ultra-high ceilings throughout + double-height void creating a superb sense of space and interconnectedness
— well-appointed bathroom on each level for ultimate convenience, including main bathroom with incorporated laundry facilities
— feature floor treatments throughout, including polished concrete, new carpet, and Victorian Ash floorboards
— comfort assured by NOBO electric heating panels, Fanaway ceiling fans, and Daikin reverse-cycle air-conditioning units
— secure double garage with plenty of flexible storage
— lifestyle location perfection! Walk to Seddon Village in just four minutes to immerse yourself in its superb village atmosphere, with cafes serving up great coffee, inviting restaurants and wine bars, gourmet grocers, and welcoming boutiques. Footscray’s eclectic shopping and dining precinct is a seven-minute walk from home, while proximity to Yarraville Village, Footscray Park, the Maribyrnong River, and Flemington Racecourse adds extra lifestyle appeal. Central West Shopping Centre offers a choice of supermarkets six minutes from home, while Highpoint Shopping Centre is enviably close offering big-name and designer shopping
— walk to Footscray City Primary School, Footscray High School, and Victoria University
— only 6.9km from the CBD with easy road access, or walk to Middle Footscray Station in six minutes for regular citybound trains

Read More

Location

Documents

Statement of Information Download

Raymond Abilameh

Sales Consultant

0412 210 889