Appraisal (03) 8398 7800
Appraisal Tel (03) 8398 7800 [email protected]
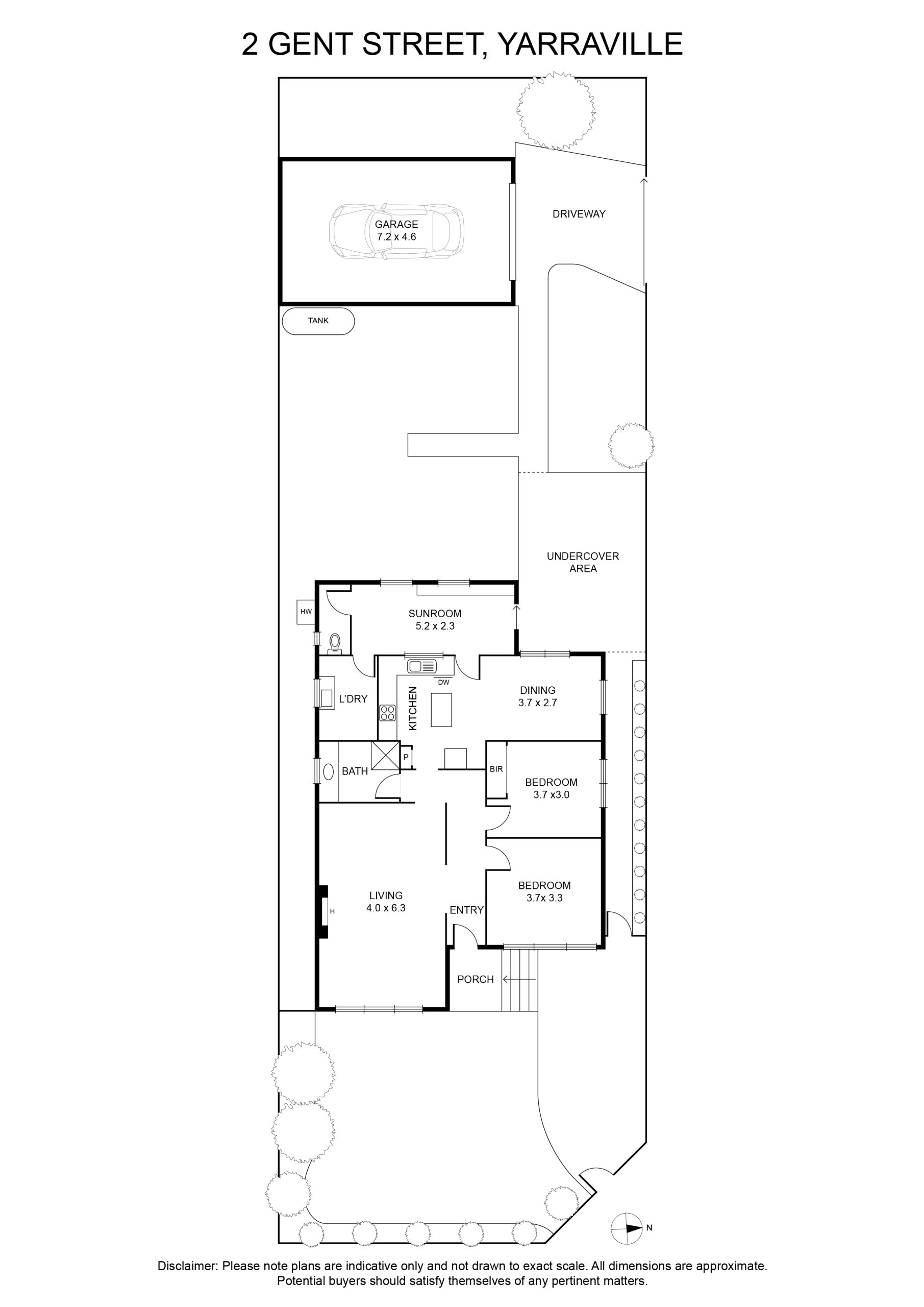
2 1 2 444.0 Sqm $980,000 - $1,050,000 Updated fifties classic, superb family lifestyle

Having held four generations of the same family since its construction in 1951, this charming two-bedroom weatherboard is now ready for new owners to call it home. Set on a large corner allotment in a peaceful pocket of Yarraville, this property offers both instant comfort and exciting scope for the future, while its location promises an enviable lifestyle with easy access to conveniences and beautiful outdoor attractions. This is a superb opportunity in a prime lifestyle location. Don’t miss your chance to inspect.

– charming weatherboard home circa 1951 situated on a large corner allotment in a coveted pocket of Yarraville ideal for easy family living
– instant comfort + scope for fresh renovation and extension (STCA)
– large front and back gardens
– an outstanding opportunity for families seeking room to move without compromising on city-fringe convenience
– two bedrooms including one with a built-in robe
– oversized living room with front garden views
– open-plan kitchen/dining with neat kitchen boasting Miele and Smeg appliances
– large sunroom, offering a flexible space perfect for a variety of uses
– family bathroom with shower and separate toilet
– generous walk-in laundry
– original floorboards + stylish plantation shutters
– ducted heating + evaporative cooling
– large covered entertaining patio overlooking the enviably spacious back garden – a huge play space for the kids
– secure one car garage + one driveway parking space
– ideally situated for relaxed family living and easy access to the famed Yarraville lifestyle. Walk to Cruickshank Park in just one minute to immerse yourself in its stunning parkland or to take a walk along the winding Stony Creek Trail. The much-loved Angliss Reserve playground is a short walk from home, sure to delight the kids, while the easy stroll to the Roberts Street shops invites you to enjoy a coffee at Masak Masak and shop for gourmet delights at Rocco’s Deli. Enviable proximity to Yarraville Village adds loads of location appeal, with its vibrant cafes and eateries, grocers, boutiques, wine bars and the iconic Sun Theatre all just a six-minute drive away
– only 10.9km from the CBD with easy road access, or catch the train from nearby Yarraville Station, a seven-minute bike ride from home
– sought-after school zone – Kingsville Primary School (scenic seven-minute walk through Cruickshank Park) and Footscray High School’s Pilgrim campus (nine-minute drive)

Information provided herein is believed to be accurate at the time of publishing, no responsibility is taken for any errors or omissions. It is the responsibility of the Purchaser to obtain independent professional advice and verification.

Read More

Auction

Saturday 09 May 2026 10:30 AM

Inspections

Saturday 18 April 2026 11:00am - 11:30am

Location

Documents

Statement of Information Download

Joseph Allan

Sales Consultant I LEA

0413 247 525