Appraisal (03) 8398 7800
Appraisal Tel (03) 8398 7800 [email protected]
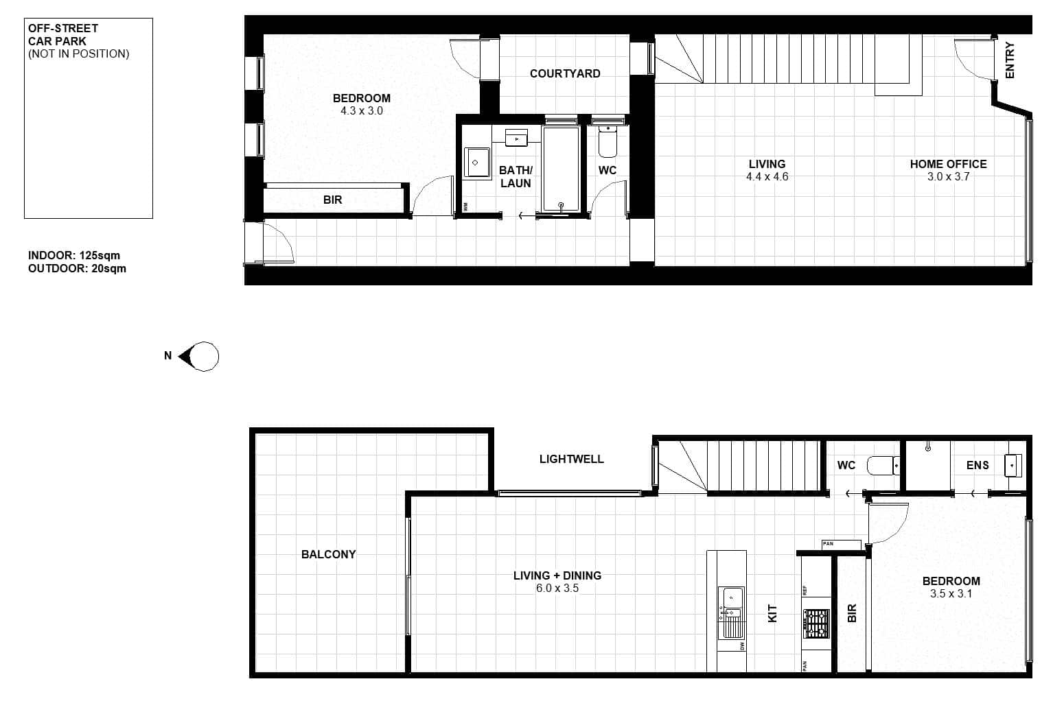
2 2 1 $700,000 - $770,000 ADVANCED NOTICE

Contact Joseph on 0411 508 458 for more information

Read More

Location

Documents

Statement of Information Download

Joseph Luppino

Director | Auctioneer

0411 508 458