Appraisal (03) 8398 7800
Appraisal Tel (03) 8398 7800 [email protected]
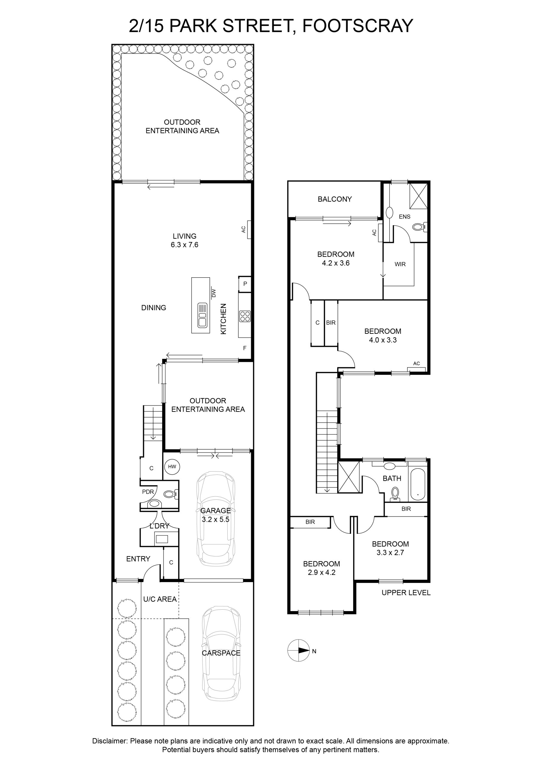
4 2 2 202.0 Sqm $899,000 - $988,000 Spacious family living, superb city-fringe convenience

Families seeking room to move and a relaxed city-fringe lifestyle will be delighted by this instantly inviting four-bedroom, two-bathroom townhouse ideally situated in a coveted pocket of Footscray.

Spacious interiors are complemented by low-maintenance alfresco entertaining and off-street parking for two cars in a superb lifestyle location where cafes and schools await within walking distance, an abundance of shops, restaurants and outdoor attractions await enviably close to home and the city is less than 9km away.

– beautifully presented four-bedroom, two-bathroom townhouse offering modern living and easy alfresco entertaining
– ideal for growing families seeking a spacious, low-maintenance home in a close-to-everything city-fringe location
– roomy open-plan living showcasing generous living and dining zones and a well-appointed kitchen with quality appliances and a handy breakfast bar
– open-plan living opens to a large, decked alfresco entertaining zone fringed by established greenery and bamboo for ambience and privacy
– main bedroom with a walk-in robe, ensuite and private balcony—a quiet spot to enjoy your morning coffee
– three additional bedrooms with built-in robes
– large main bathroom with bathtub and shower
– walk-in laundry + guest powder room
– quality floor treatments throughout, including hardwood floorboards
– ducted heating + split-system heating/cooling
– handy under-stair storage
– secure single garage + driveway space for one additional car
– ideally situated for easy city-fringe living and a fabulous outdoor lifestyle! Walk to a choice of popular cafes, including West 48 and Gordon Street Bakery, and enjoy enviable proximity to West Footscray’s Barkly Village and Footscray’s renowned international dining, fresh food market and shopping. Highpoint Shopping Centre awaits just eight minutes from home, offering big-name and designer shopping, while proximity to a fabulous range of outdoor attractions—including Footscray Park, Maribyrnong River, Flemington Racecourse, Footscray Pump Track and a choice of golf courses—ensures a fantastic family lifestyle
– situated just 8.2km from the CBD with easy road access, or catch the bus or tram to Footscray Station for regular city-bound trains
– sought-after school zone – walk to Footscray North Primary School, St. John’s Catholic Primary School and Victoria University and drive to Maribyrnong College in four minutes.

Information provided herein is believed to be accurate at the time of publishing, no responsibility is taken for any errors or omissions. It is the responsibility of the Purchaser to obtain independent professional advice and verification.

 

Read More

Auction

Saturday 14 March 2026 02:00 PM

Inspections

Saturday 07 March 2026 10:15am - 10:45am Saturday 14 March 2026 01:30pm - 02:00pm

Location

Documents

Statement of Information Download

Joseph Allan

Sales Consultant I LEA

0413 247 525