Appraisal (03) 8398 7800
Appraisal Tel (03) 8398 7800 [email protected]
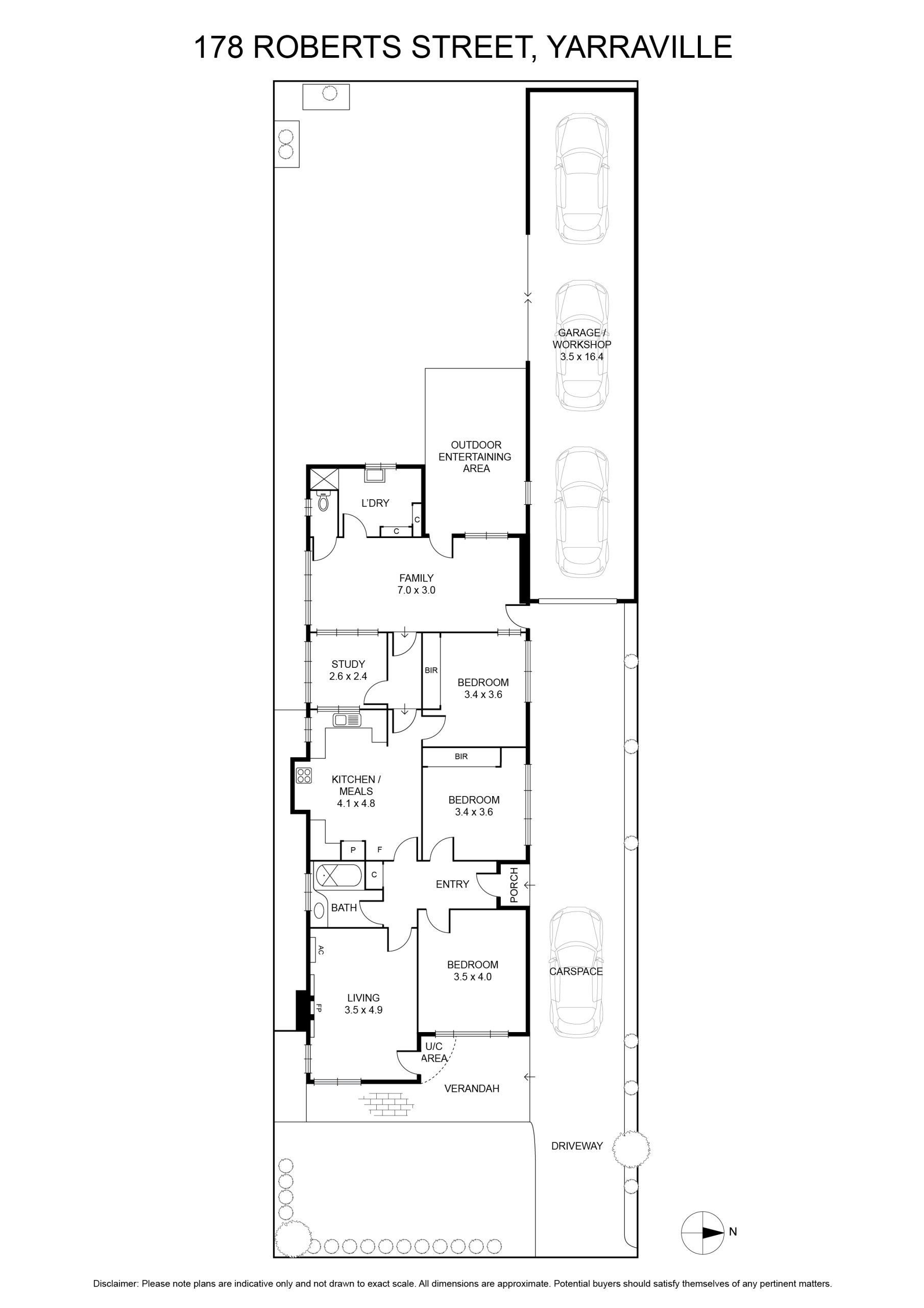
3 1 4 469.0 Sqm $1,080,000
Sold on 30 October, 2025
WELCOME HOME

• Charming and liveable now – ready to enjoy while offering fantastic scope to renovate, extend, or create your forever home (STCA)
• Three bedrooms + separate study – perfect for family living and working from home
• Central bathroom and welcoming lounge for everyday comfort
• Functional kitchen and dining area – practical and light-filled
• Spacious rear family room – ideal for gatherings, kids’ play, or relaxation
• Deep backyard – a blank canvas for gardens, entertaining, or future extensions
• Ample off-street parking – including double length secure garage, rare convenience in this sought-after pocket
• Prime location – within walking distance to Wembley Avenue shops, Wembley Primary School, Cruickshank Park, and just minutes to Yarraville Village and transport
• Move-in ready yet full of potential – enjoy now while planning your dream home

Information provided herein is believed to be accurate at the time of publishing, no responsibility is taken for any errors or omissions. It is the responsibility of the Purchaser to obtain independent professional advice and verification.

Read More

Location

Documents

Statement of Information Download

Joseph Allan

Sales Consultant I LEA

0413 247 525