Appraisal (03) 8398 7800
Appraisal Tel (03) 8398 7800 [email protected]
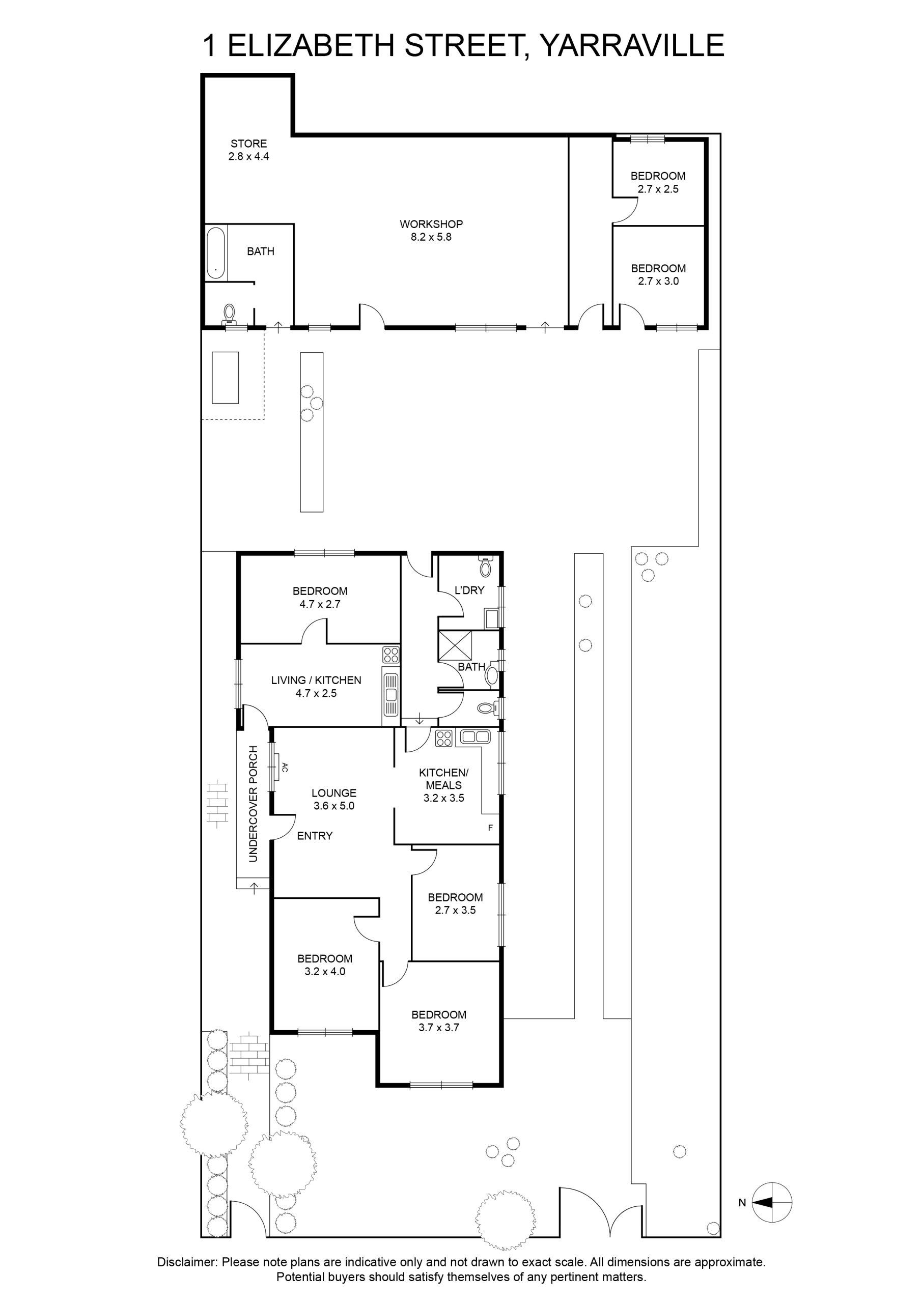
4 1 521.0 Sqm $1,400,000 - $1,500,000 Rare 521m² in the Heart of Yarraville

An exceptional and increasingly rare opportunity presents itself in one of Yarraville’s most prized village pockets. Positioned in a quiet cul-de-sac just moments from the heart of the action, this four-bedroom home sits on a substantial 521m² (approx.) allotment with over 15m frontage, offering outstanding flexibility for renovators, builders, and investors alike.

The village location alone will excite buyers—zoned for Yarraville West Primary School and within easy walking distance of cafés, bars, restaurants, specialty shops, transport, and the iconic Sun Theatre. Yarraville Station and Coles Yarraville are both just minutes away, while Yarraville Oval and Beaton Reserve sit virtually at your doorstep.

From a development perspective, the appeal is undeniable. With no heritage overlay and a land allotment exceeding 300sqm, constructing one dwelling requires no planning approval (STCA). This allows buyers to bypass lengthy holding periods and move straight from plans and permits to construction—an enormous advantage in today’s market. The generous block size and frontage also allow the flexibility to build one substantial home or explore multi-dwelling options (STCA), significantly widening the buyer pool.

With scarcity of 500sqm+ blocks so close to the village, strong competition is expected. Add to this the convenience of being just 9.4km from the Melbourne CBD, and you have one of the Inner West’s most compelling land and lifestyle offerings.

-four-bedroom home on 521m² (approx.) with over 15m frontage
-premier village cul-de-sac location
-perfect renovator, builder, or investor opportunity
-no heritage overlay – significant planning advantages
-option to build immediately with building permit only (STCA)
-potential for single or multiple dwellings (STCA)
-walk to Yarraville Village, train station, cafes, and The Sun Theatre
-350m (approx.) to Coles Yarraville
-moments from Yarraville Oval and Beaton Reserve
-only 9.4km (approx.) from Melbourne CBD
-zoned for Yarraville West Primary School

Brought to you by Vendor Marketing – Melbourne’s most qualified vendor advocates – vendormarketing.com.au

Read More

Auction

Saturday 21 March 2026 01:00 PM

Inspections

Saturday 07 March 2026 12:00pm - 12:30pm Wednesday 11 March 2026 04:30pm - 04:50pm Saturday 14 March 2026 11:00am - 11:30am

Location

Documents

Statement of Information Download

Huss Saad

Managing Director | OIEC

0413 364 769